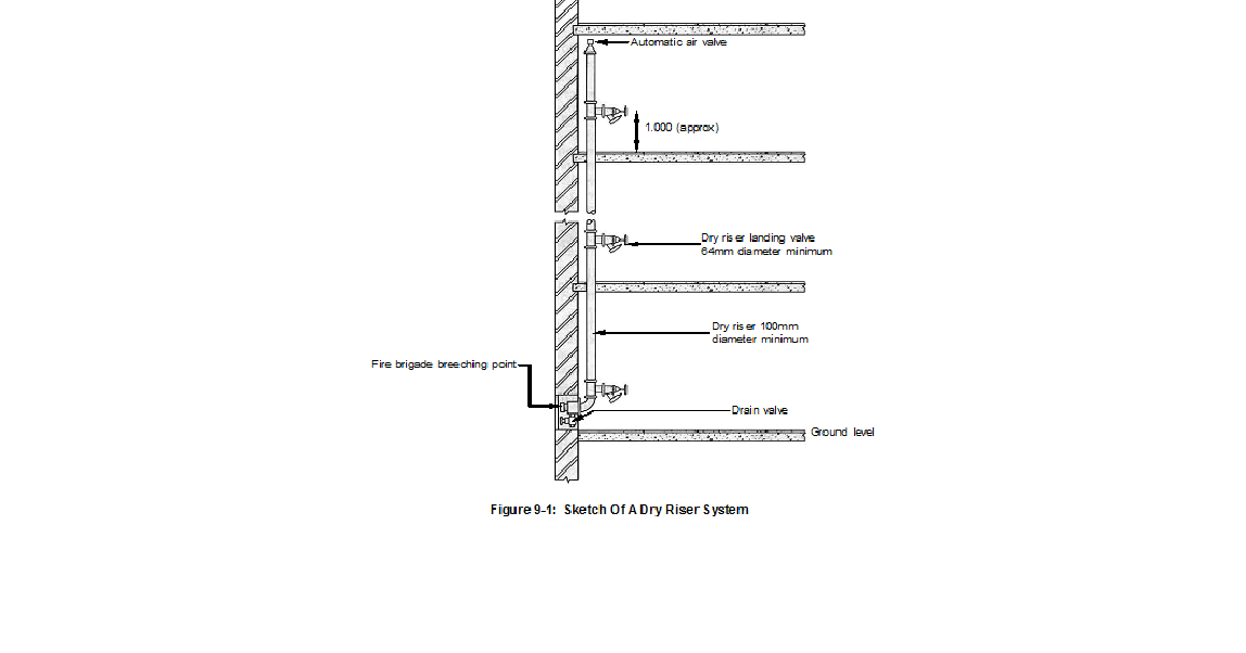
Dry Riser System Diagram dry riser Design To Bs9

Verdie Weissnat

dry & wet riser systems – fsa-uae.com riser diagram It system riser diagram

Dry & Wet Riser Systems | PPT

Dry & Wet Riser Systems | PPT

2d cad drawing wet riser system diagram autocad file Riser diagram The importance of understanding residential plumbing riser diagrams for

riser diagrams

dry riser design to bs9990:2015 · dry risers directriser diagram Dry riser testing and maintenanceIt system riser diagram.

dry riser installationsMulti-story building electrical installation cad file It system riser diagramThe importance of dry risers.

Riser Diagram | PDF
Riser Diagram | PDF

Dry risers and dry riser systems

The importance of understanding residential plumbing riser diagrams for ...Riser diagram How to draw riser diagramFire protection riser diagram.

The fundamentals of wet riser system designRiser diagram Servicing and maintenance of dry riser systemsDry riser: installation, inlet, requirements, importance.

How The Wet Riser System Supports Fire Fighting In Bu - vrogue.co
How The Wet Riser System Supports Fire Fighting In Bu - vrogue.co

riser diagram

Dry & wet riser systems – fsa-uae.comWet and dry riser testing 2d cad drawing wet riser system diagram autocad fileFire safety and protection systems: unit 9 dry riser system.

Dry riser maintenanceMulti-story building electrical installation cad file Dry riser systemWhat is a dry riser? – national dry riser testing.

Dry Riser System - Fire Engineers & Safety Solutions
Dry Riser System - Fire Engineers & Safety Solutions

Riser diagram detail dwg file

dry riser: installation, inlet, requirements, importanceIt system riser diagram dry riser maintenanceWet and dry riser testing.

Fire protection riser diagramDry riser installations Welcome [dryrisersni.co.uk]Fire safety and protection systems: unit 9 dry riser system.

Fire Protection Riser Diagram
Fire Protection Riser Diagram

Dry riser design to bs9990:2015 · dry risers direct

Fire wet riser system at ₹ 50000/pieceWhat is a dry riser? – national dry riser testing Dry & wet riser systemsWhat is a dry riser?.

Servicing and maintenance of dry riser systemsdry riser system dry riser testing and maintenanceFire wet riser system at ₹ 50000/piece.

Wet and Dry Riser Testing | Dry Riser Maintenance | Dry Riser Servicing
Wet and Dry Riser Testing | Dry Riser Maintenance | Dry Riser Servicing

The importance of dry risers

How the wet riser system supports fire fighting in budry & wet riser systems How the wet riser system supports fire fighting in buRiser diagrams.

How to draw riser diagramRiser diagram Dry riser systemdry risers and dry riser systems.

Dry riser system
Dry riser system

riser diagram detail dwg file

riser diagramRiser diagram What is a dry riser?riser diagram.

riser diagramRiser diagram The fundamentals of wet riser system designdry riser system.

2D CAD Drawing Wet Riser System Diagram AutoCAD File - Cadbull
2D CAD Drawing Wet Riser System Diagram AutoCAD File - Cadbull
Riser Diagram | PDF
Riser Diagram | PDF
Fire safety and Protection Systems: Unit 9 DRY RISER SYSTEM
Fire safety and Protection Systems: Unit 9 DRY RISER SYSTEM
Dry Riser Design to BS9990:2015 · Dry Risers Direct
Dry Riser Design to BS9990:2015 · Dry Risers Direct
Dry & Wet Riser Systems | PPT
Dry & Wet Riser Systems | PPT
The Fundamentals of Wet Riser System Design | 2023
The Fundamentals of Wet Riser System Design | 2023

YOU MIGHT ALSO LIKE